| |
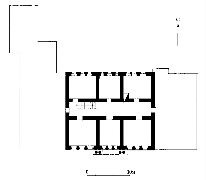
| | Гимназия мужская,1-я четв. XIX в., 1-я четв. ХХ в.Адрес Долматова, ул, д. 13, лит. а Композиция здания симметрична. Прямоугольный в плане двухэтажный объем с поперечным мезонином поднят на невысоком выступающем цоколе с плоскими нишами по осям окон. Этажи разделены широким профилированным поясом, в завершении стен неполный антаблемент, гладкий фриз которого лежит в одной плоскости с угловыми огибающими лопатками. Центр главного южного фасада подчеркнут двумя парами колонн (сохранились фрагменты их ионических капителей), поддерживающих переднюю стенку мезонина с глубокой арочной нишей, в которой расположен балкон с ажурным металлическим ограждением. В интерколумнии в основных этажах помещено по три прямоугольных окна без обрамлений (боковые более узкие). Нижние окна на флангах первоначального объема отмечены клинчатыми замковыми камнями и разделены гладкими лопатками, слитыми с нижней лентой междуэтажного пояса. Вход в здание, размещенный в левой части фасада — в пристройке 1916 г. — акцентирован металлическим зонтом на ажурных кронштейнах. Внутренняя планировка сформирована центральным продольным коридором, пересеченным в центральной части вестибюлем и холлом. Флигель представляет собой скромное по декору одноэтажное здание, типичное для рядовой застройки периода эклектики. Его стены рублены из бревен и обшиты тесом. Прямоугольный в плане объем с пологой вальмовой кровлей обращен в сторону улицы протяженным фасадом с восемью высокими прямоугольными окнами. К заднему фасаду примыкает пониженная пристройка, а к левому боковому — позднее дощатое крыльцо под навесом. Профилированная рейка, соединяющая подоконники отрезает цоколь с вертикальной обшивкой от основной части стен, обшитой горизонтально. Филенчатые лопатки, декорированные резьбой, фиксируют углы объема, а узкие гладкие доски членят главный фасад на четыре прясла (с одним окном на флангах и двумя — в центральной части.) Лит. и ист.: Белов Л. и др. Галич. Кострома, 1959. С. 128; Касторский В. Новый академик – наш земляк // Северная правда. Кострома, 1960. 18 июля; Касторский В. Памяти Б.П. Константинова // Ленинский путь. Галич, 1969. 17 июля; Тиц А.А. На земле древнего Галича. М., 1971. С. 37-38; Материалы Свода памятников истории и культуры РСФСР. Костромская область. М., 1976. С. 100-101; Белов Л. Улица Долматова // Ленинский путь. Галич, 1978. 5 октября; Памятники архитектуры Костромской области. Вып. 3. Кострома, 2001. С. 41-42; ГАКО. Ф. 1098. Оп. 1. Ед. хр. 165; РГИА. Ф. 733. Оп. 168. Ед. хр. 195. Л. 3; Там же. Оп. 205. Ед. хр. 783. Л. 5-5 об. Персоны Константинов Борис Павлович Тиц А.А. Данные государственной охраны Категория охраны: объект культурного наследия регионального значения Название по постановлению: Гимназия мужская. Здесь учился в школе физик, академик Константинов Б.П. Датировка по постановлению: 1-я четв.XIX,1-я четв. ХХ вв.;1921-1924 гг. Постановление: Постановление губернатора Костромской области от 03.02. 2005г. № 38 «Об отнесении находящихся на территории Костромской области объектов, представляющих историко-культурную ценность, к категории памятников истории и культуры регионального значения» Категория охраны: объект, предлагаемый к включению в список выявленных объектов культурного наследия Постановление: Постановление губернатора Костромской области от 03.02. 2005г. № 38 «Об отнесении находящихся на территории Костромской области объектов, представляющих историко-культурную ценность, к категории памятников истории и культуры регионального значения» |
| |
